HP
| Ürünlerimiz | Hadde Ürünler | HP | ||||||||||||||||||||||||||||||||||||||||||||||||||||||||||||||||||
![]() |
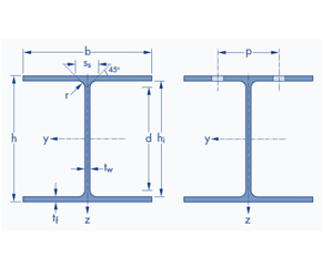
Boyutlar: AM standartlarına uygun. Tolerans Değerleri: EN 10034: 1993 Yüzey Durumu: EN 10163-3: 2004 standardına göre sınıfı C, alt sınıfı 1 |
|||||||||||||||||||||||||||||||||||||||||||||||||||||||||||||||||
| HP Ağırlık Cetveli | ||||||||||||||||||||||||||||||||||||||||||||||||||||||||||||||||||
|
||||||||||||||||||||||||||||||||||||||||||||||||||||||||||||||||||
Sosyal Medya
İletişim
ADRES : Sanayi Sitesi 13. Ada No:25
Karacabey / BURSA
TELEFON : (0-224) 671 82 04
FAKS : (0-224) 671 80 49
E-POSTA : info@sozeridemircelik.com

